我々のログハウスの仕様

PDFファイルを見るためにはAcrobat Readerが必要です。
Acrobat Readerはアドビ システムズ株式会社より無料で入手可能です。



メーカ ランタサルミ(フィンランド)
ログサイズ 120x170
ログ材 フィンランド産パイン
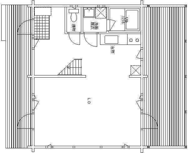
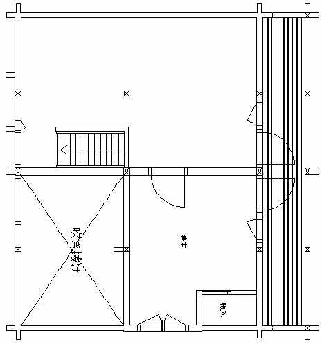
床面積 床面積 (ベランダ面積)
  1階 46.80m2 (30.42m2)
 2階 36.27m2 ( 9.36m2)
壁間寸法 6.0 x 7.8m
屋根勾配 45度 (かね勾配)


1階平面図   2階平面図    立面図


1階平面図PDF

1階平面図




2階平面図PDF

2階平面図




立面図(PDF:上の図下の図

立面図
立面図